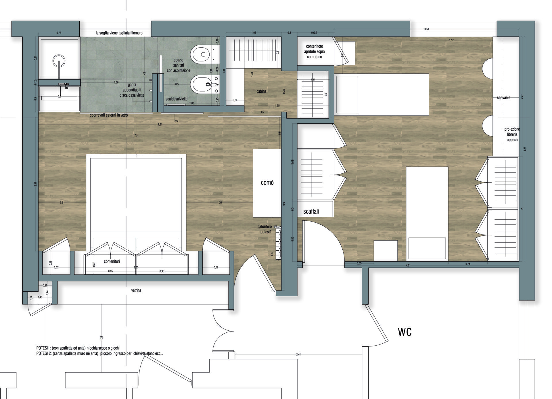
La necessità di far spazio alla famiglia che cresce richiedeva la nuova disposizione di parte degli ambienti di questo appartamento in cui l’intervento è consistito nel recupero di alcune spazialità. Lo stile dei proprietari aveva già un‟identità ben definita che richiedeva un intervento rispettoso ed in linea con esso che si potesse integrare senza sconvolgere la percezione del gusto proprio della committenza. Si è deciso dunque di accorpare la zona d‟ingresso a quella notte, convertendola in camera padronale con servizi esclusivi e spogliatoio. L‟impatto che l‟avanzamento della parete di fondo avrebbe avuto sull‟ingresso è stato minimizzato scostandone leggermente il punto di fuga verso l‟esterno, in direzione del camino, anch‟esso in posizione diagonale rispetto al soggiorno. Nella camera padronale, una quinta di fronte alla zona letto si apre simmetricamente su due zone: quella dei servizi e quella dello spogliatoio. La prima, riservata ai servizi igienici, restituisce alla zona letto luce ed aria della finestra comune attraverso un‟ area ibrida in continuità. Qui il vero protagonista diventa il lavabo freestanding in ceramica con rubinetteria da terra, visibile dalla zona letto quando il pannello scorrevole in vetro satinato viene aperto. Il sapore termale è riservato all’angolo doccia rivestito con listelli in pietra naturale e caratterizzato dal largo piatto su misura con elementi di deflusso dell‟ acqua a scomparsa.
Montecosaro (MC) 2014
